Основной офис ул. Гусовского, 10

Режим работы пн-пт, с 10.00 до 19.00
сб-вс, по заявке

Заказать обратный звонок +375 (29) 325-47-41
+375 (29) 553-81-66

Грей

Ростовые окна, много естественного света!

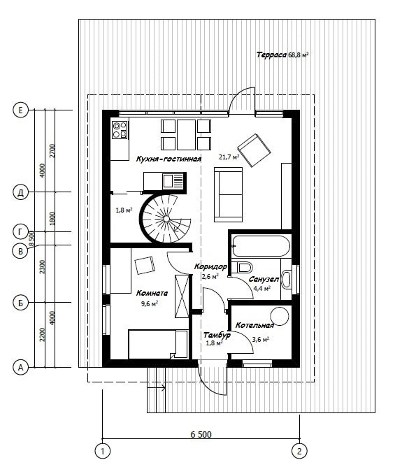
Характеристики проекта

Общая площадь: 93,5 м2
Отапливаемая площадь: 93,5 м2
Габаритные размеры: 6,5мх8,5м
Количество спален: 4 шт.

Сведения о проекте

  • Высота первого этажа — 2,5м
  • Высота мансардного этажа — 2.4м
  • Фундамент — буронабивной
  • Наружные стены — каркас
  • Перекрытия — балки перекрытия
  • Кровля — металлочерепица "Монтерей"
  • Наружная отделка — имитация бруса (плита ЦСП, сайдинг)
Получить консультацию
Комплектация Описание Видео-отзыв

Эконом

Фундамент

1. Свайно-винтовой (сваи d = 108 мм, l = 2500 мм).

Конструкция каркаса:

1. Обвязка по фундаменту бруса 150х150 мм.
2. Внешние стены и фронтоны: доска 40х150 мм.
3. Лаги перекрытия пола: 40х150 мм.
4. Чердачные перекрытия: доска 40х150 мм.
5. Раскосы: доска 25-32х100 мм.
6. Межкомнатные перегородки несущих стен из доски 40х150 мм.
7. Межкомнатные перегородки из доски 40х100 мм.
8. Внешняя обшивка каркаса: OSB 9 мм.

Устройство кровли:
1. Стропила: доска 40х150 мм, подстропильные затяжки 40х150 мм.
2. Гидроветрозащитная мембрана STROTEX 1300 Basic
3. Контробрешетка из бруска 25х50 мм.
4. Обрешетка из доски 32х100 мм.
5. Комплектующие элементы кровли: карнизная планка, ветровая планка.
6. Кровельное покрытие: металлочерепица 0,45мм

Утепление и паро-гидроизоляция:
Гидроветрозащитная мембрана по фасаду STROTEX 1300 Basic

Биохимическая защита:
Весь силовой каркас обрабатывается биохимическим составом

 

Стандарт

Фундамент

1. Свайно-винтовой (сваи d = 108 мм, l = 2500 мм).

Конструкция каркаса:

1. Обвязка по фундаменту бруса 150х150 мм.
2. Внешние стены и фронтоны: доска 40х150 мм.
3. Лаги перекрытия пола: 40х150 мм.
4. Чердачные перекрытия: доска 40х150 мм.
5. Раскосы: доска 25-32х100 мм.
6. Межкомнатные перегородки несущих стен из доски 40х150 мм.
7. Межкомнатные перегородки из доски 40х100 мм.
8. Черновые полы: OSB 9 мм.
9. Внешняя обшивка каркаса: OSB 9 мм.

Устройство кровли:
1. Стропила: доска 40х150 мм, подстропильные затяжки 40х150 мм.
2. Гидроветрозащитная мембрана STROTEX 1300 Basic
3. Контробрешетка из бруска 25х50 мм.
4. Обрешетка из доски 32х100 мм.
5. Комплектующие элементы кровли: карнизная планка, ветровая планка.
6. Кровельное покрытие: металлочерепица 0,45мм

Утепление и паро-гидроизоляция:
1. Утепление пола URSA TERRA 150 мм.
2. Утепление внешних стен URSA TERRA 150 мм.
3. Шумоизоляция межкомнатных перегородок URSA TERRA 100 мм.
4. Утепление кровли URSA TERRA 150 мм, скатная кровля.
5. Пароизоляционная пленка по внешним стенам.
6. Гидроветрозащитная пленка по межкомнатным перегородкам.
7. Пароизоляционная пленка по чердачному перекрытию.
8. Пароизоляционная пленка по стропилам.
9. Гидроветрозащитная мембрана по фасаду STROTEX 1300 Basic

Внешняя отделка:
1. Имитация бруса.
2. Подшивка кровельных свесов.
3. Водосточная система.

Двери
1. Входная металлическая дверь.
2. Межкомнатные двери: экошпон

Остекление:
1. Окна ПВХ с двойным стеклопакетом.

Биохимическая защита:
Весь силовой каркас обрабатывается биохимическим составом

 

Премиум

Фундамент

1. Свайно-ростверковый фундамент
2. Обвязка по фундаменту строенный ростверк из доски 50х150 мм.

Конструкция каркаса:

2. Обвязка по фундаменту бруса 150х150 мм.
2. Внешние стены и фронтоны: доска 40х150 мм.
3. Лаги перекрытия пола: 40х150 мм.
4. Чердачные перекрытия: доска 40х150 мм.
5. Раскосы: доска 25-32х100 мм.
6. Межкомнатные перегородки несущих стен из доски 40х150 мм.
7. Межкомнатные перегородки из доски 40х100 мм.
8. Черновые полы: OSB 9 мм.
9. Внешняя обшивка каркаса: OSB 9 мм.

Устройство кровли:
1. Стропила: доска 40х150 мм, подстропильные затяжки 40х150 мм.
2. Гидроветрозащитная мембрана STROTEX 1300 Basic
3. Контробрешетка из бруска 25х50 мм.
4. Обрешетка из доски 32х100 мм.
5. Комплектующие элементы кровли: карнизная планка, ветровая планка.
6. Кровельное покрытие: металлочерепица 0,45мм

Утепление и паро-гидроизоляция:
1. Утепление пола URSA TERRA 150 мм.
2. Утепление внешних стен URSA TERRA 150 мм.
3. Шумоизоляция межкомнатных перегородок URSA TERRA 100 мм.
4. Утепление кровли URSA TERRA 150 мм, скатная кровля.
5. Пароизоляционная пленка по внешним стенам.
6. Гидроветрозащитная пленка по межкомнатным перегородкам.
7. Пароизоляционная пленка по чердачному перекрытию.
8. Пароизоляционная пленка по стропилам.
9. Гидроветрозащитная мембрана по фасаду STROTEX 1300 Basic

Внешняя отделка:
1. Имитация бруса.
2. Подшивка кровельных свесов.
3. Водосточная система.

Остекление:
1. Окна ПВХ с двойным стеклопакетом.

Биохимическая защита:
Весь силовой каркас обрабатывается биохимическим составом

Сан. узел.
1. Стены ЦСП 10 мм.
2. Пол ЦСП 20 мм, гидроизоляция, подготовка под плитку.
3. Потолок – ЦСП 10 мм.
Котельная
1. Пол ЦСП 20 мм.
2. Стены – ЦСП 10 мм.
3. Потолок — ЦСП 10 мм.

Двери
1. Входная металлическая дверь.
2. Межкомнатные двери: экошпон.
В комплектацию входят коммуникации
1. Электрика.
2. Сантехника.
3. Канализация.
4. Отопление.

 

Фундамент

Свайный: монолитные сваи в обсадной трубе ф200мм. Бетон С20/25 с армированием арматурой ф12мм. Заглубление свай на 1200-1500мм. Горизонтальная гидроизоляция в 2 слоя. Обвязочный брус 150х150 с обработкой огнебиозащитным составом. Отлив из листа оцинкованного с покрытием полиэстер Входит в базовую стоимость.
Свайно-ростверковый: буронабивные сваи ф200мм на глубину 1500мм.
Бетон С20/25
Монолитный ростверк (лента) 250х500(Н).
Армирование: рабочая арматура ф12 (по 2 арматуры в нижнем и верхнем поясе).
Дополнительная услуга

Наружные стены:

Наружная отделка: имитация бруса /вагонка /сайдинг / плиты ЦСП – на выбор.
Гидроизоляция: супердиффузионная мембрана Strotex 1300 basic или аналоги.
Каркас: брус 40х150мм техсушки с обработкой огнебиозащитным составом.
Теплоизоляция: минеральная плита URSA Terra толщиной 150 мм.
Пароизоляция: плёнка пароизоляционная Strotex.
Внутренняя отделка: имитация бруса /вагонка /гипсокартон 2 слоя /– на выбор.
Входит в базовую стоимость.
Теплоизоляция: минеральная плита URSA Terra толщиной 200 мм по контрбрусу. Дополнительная услуга

Полы

Покрытие пола: плита ЦСП 20мм / доска пола 28мм на выбор.
Пароизоляция: пароизоляция Strotex или аналоги.
Балки пола: брус 150х40 техсушки c шагом 400мм с обработкой огнебиозащитным составом.
Теплоизоляция: минеральная вата URSA TERRA толщиной 150мм.
Черновой пол: плита ОСБ 9мм
Входит в базовую стоимость.
Теплоизоляция: минеральная вата URSA TERRA толщиной 200мм. Дополнительная услуга

Перегородки:

Пароизоляция: пароизоляция Strotex.
Каркас: брус 40х100 техсушки с обработкой огнебиозащитными составом.
Звукоизоляция: минеральная вата URSA TERRA толщиной 100мм.
Входит в базовую стоимость.

Перекрытие:

Покрытие пола: доска пола 28мм.
Пароизоляция: пароизоляция Strotex или аналоги.
Балки: брус 50х200 техсушки с шагом 400мм с обработкой огнебиозащитным составом.
Звукоизоляция: минеральная вата URSA TERRA толщиной 150мм.
Пароизоляция: пароизоляция Strotex.
Входит в базовую стоимость.

Кровля

Покрытие кровли: металлочерепица "Монтеррей", профлист - на выбор.
Гидроизоляция: супердиффузионная мембрана Strotex 1300 basic.
Стропила: брус 40х150 техсушки с обработкой огнебиозащитным составом.
Теплоизоляция: минеральная вата URSA TERRA толщиной 150мм.
Пароизоляция: пароизоляция Strotex.
Входит в базовую стоимость.

Теплоизоляция: минеральная вата URSA TERRA толщиной 200мм.
Дополнительная услуга

Окна

Окна ПВХ с двухкамерным стеклопакетом.
В стоимость входит подоконник ПВХ, отлив из оцинкованной стали.
Входит в базовую стоимость.

Дверь наружная:

Металлическая.
Бренд: Металюкс
Покрытие: Покрытие «Антик», цвет коричневый
Наполнение: Минеральная вата высокой плотности.
Уплотнитель: 2 контура уплотнения (D контур на коробе и двойной E контур на полотне).
Размеры: 860,960х2050мм
Открывание: левое/правое
Особенности конструкции: Дополнительную жесткость конструкции придает уникальное расположение ребер ( 2 вертикальных, 2 горизонтальных)
• Усиленные петли на подшипниках
• Усиление замковой части металлическим карманом
• Усиление зоны петель легированным металлом квадратного сечения
• Полотно двери оснащено мощными противосъемными ригелями диаметром 14 мм (2 шт.)
• Особый профиль полотна. Края полотна завальцованы, что придает дополнительную жесткость и исключает вскрытие двери силовым отжимом
• Безмолдинговая система крепления внутренней панели позволяет добиться безупречного внешнего вида изделия. Особая конфигурация профиля полотна дает возможность осуществить замену внутренней панели при необходимости
Верхний замок: «Guardian 30.01» (сувальдный)
Нижний замок: «Guardian 32.11» (цилиндровый)
Входит в базовую стоимость.

Двери межкомнатные

Эко Шпон
Бренд: Эльпорта
Особенности: Бескромочная технология производства, профиль без пустот и ДСП.
Материал: Композитный мебельный щит на основе высококачественного соснового бруса и MDF.
Отделка: Эко Шпон - структурный антивандальный материал с защитным лаком (Германия).
Стекло: Magic Fog - белое сатинированное. Дешевое стекло с пескоструйной обработкой при производстве не используется.
Входит в базовую стоимость.

Водосточная система «Деке»

Желоба и трубы из ПВХ до уровня цоколя. Входит в базовую стоимость.

Крыльцо

Ступени из террасной доски (сосна). Входит в базовую стоимость.

Терраса

Покрытие пола - террасная доска (сосна). Ограждение из строганного бруса. Входит в базовую стоимость.

Прокладка 1-го канала вентиляции

Размещение по согласованию с Заказчиком Входит в базовую стоимость.

Электрика

Разводка электрики внутри стены негорючим кабелем ВВГнг в металлорукаве с ПВХ- оболочкой
Установка выключателей, розеток, лампочек.
Стоимость за одну точку.
Дополнительная услуга.

Водоснабжение и канализация

Дополнительная услуга.

Отопление

Разводка системы отопления полипропиленовыми трубами (пайка) с подключением отопительных приборов (радиаторы, отопительный котел). Стоимость приборов в цену не входит. Дополнительная услуга.

Покраска дома снаружи

Покраска дома снаружи лессирующими составами Тиккурила.
Стоимость за 1м2 с материалом.
Выбор цвета остаётся за Заказчиком.
Цена: 12,5 BYN/6 USD

Покраска дома изнутри

Покраска дома внутри лессирующими составами Тиккурила.
Стоимость за 1м2 с материалом.
Выбор цвета остаётся за Заказчиком.
Цена: 12,5 BYN/6 USD

Наши работы

Получите бесплатную консультацию
по всем вопросам Вашего проекта